Nieuwbouwwoning met 3 slaapkamers en tuin te Lombardsijde
Vraagprijs
Deze energiezuininge en ruime nieuwbouwwoning (6 % BTW mogelijk) is voorzien van een warmtepomp met zonnepanelen en bestaat uit:
Op het gelijkvloers: inkomhal - berging - wasplaats - tuin - mogelijkheid garage met geautomatiseerde sectionaalpoort.
Op verdiep 1: nachthal - toilet - zitruimte - eetruimte - keuken - terras.
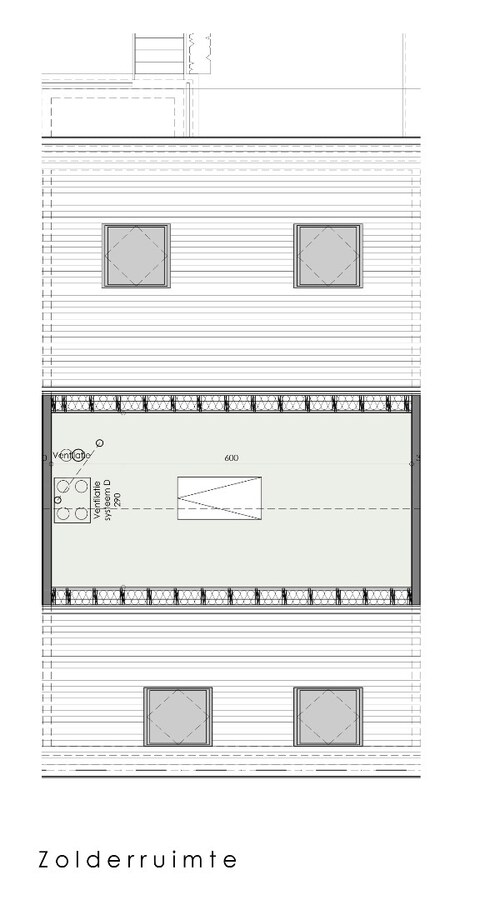
Op verdiep 2: nachthal - 3 slaapkamers - badkamer - toilet - zolder.
Geniet van de voordelen van dubbel isolerende beglazing, ventilatiesysteem D, vloerverwarming en een geavanceerde lucht/water warmtepomp. Deze woning streeft naar een indrukwekkend E-peil van E26, wat garant staat voor een efficiënte energieprestatie.
Deze nieuwbouwwoning bevindt zich centraal in Lombardsijde en geniet hierdoor van een vlotte verbinding met de rest van onze mooie kust én het binnenland.
Met de fiets ben je zo in Nieuwpoort, Westende of Middelkerke. Verscheidene winkels, de lagere school en het openbaar vervoer bevinden zich dan weer allemaal op wandelafstand. Vanuit het rustige Lombardsijde kan je dan ook heel wat ... kanten uit. Een dagje Nieuwpoort om te shoppen? Een uitstap naar één van de vele georganiseerde evenementen in Middelkerke, dineren in Westende of genieten van de rustige en ongerepte duinen in Lombardsijde? Vanuit Lombardsijde kan het allemaal en ‘s avonds keer je telkens vlot terug naar de rust. Kortom, een ideale plek om te wonen.
Contacteer ons vrijblijvend voor meer info. Lees meer Verberg
Vraag uw bezoek aan
Op het gelijkvloers: inkomhal - berging - wasplaats - tuin - mogelijkheid garage met geautomatiseerde sectionaalpoort.
Op verdiep 1: nachthal - toilet - zitruimte - eetruimte - keuken - terras.
Op verdiep 2: nachthal - 3 slaapkamers - badkamer - toilet - zolder.
Geniet van de voordelen van dubbel isolerende beglazing, ventilatiesysteem D, vloerverwarming en een geavanceerde lucht/water warmtepomp. Deze woning streeft naar een indrukwekkend E-peil van E26, wat garant staat voor een efficiënte energieprestatie.
Deze nieuwbouwwoning bevindt zich centraal in Lombardsijde en geniet hierdoor van een vlotte verbinding met de rest van onze mooie kust én het binnenland.
Met de fiets ben je zo in Nieuwpoort, Westende of Middelkerke. Verscheidene winkels, de lagere school en het openbaar vervoer bevinden zich dan weer allemaal op wandelafstand. Vanuit het rustige Lombardsijde kan je dan ook heel wat ... kanten uit. Een dagje Nieuwpoort om te shoppen? Een uitstap naar één van de vele georganiseerde evenementen in Middelkerke, dineren in Westende of genieten van de rustige en ongerepte duinen in Lombardsijde? Vanuit Lombardsijde kan het allemaal en ‘s avonds keer je telkens vlot terug naar de rust. Kortom, een ideale plek om te wonen.
Contacteer ons vrijblijvend voor meer info. Lees meer Verberg
Vraag uw bezoek aan