Nieuwbouwwoning met 3 slaapkamers en garage te Middelkerke
Verkocht Middelkerke Amaat Van Walleghemstraat 72
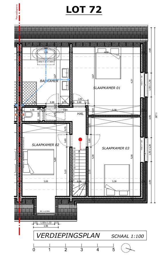
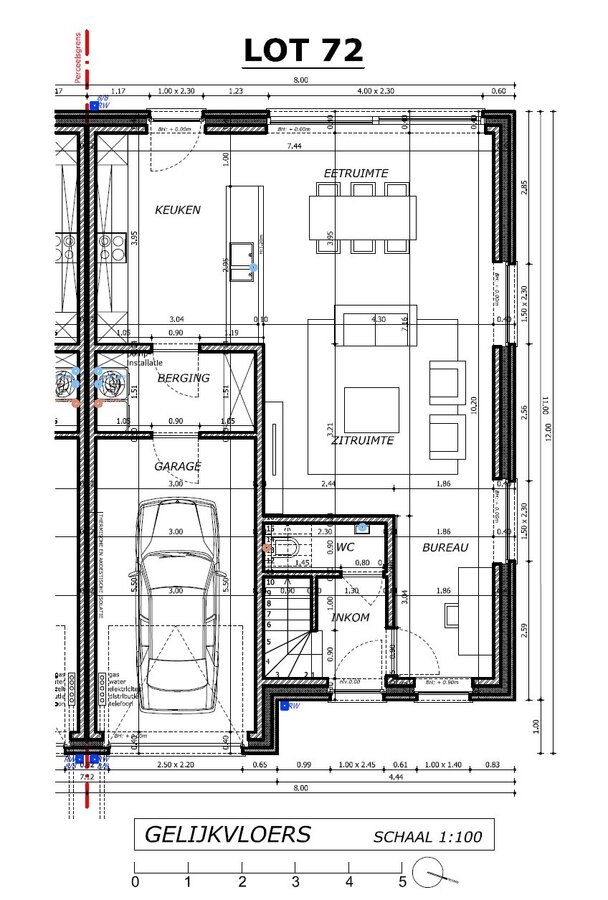
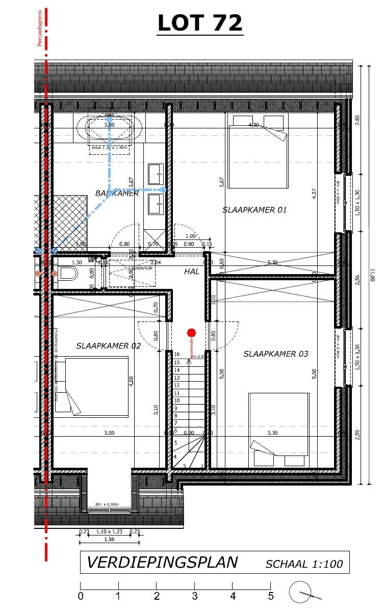
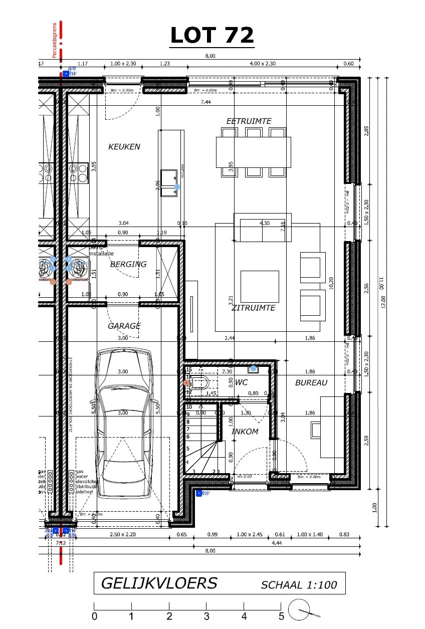
Ruime halfopen nieuwbouwwoning, gelegen op een grondoppervlakte van 321 m² met westelijke oriëntatie. Deze woning heeft een gevelbreedte van 8 meter en een bewoonbare oppervlakte van 155 m². Deze nieuwbouwwoning bestaat uit: GELIJKVLOERS: oprit - inkomhal - toilet - bureauruimte - living met open keuken - berging - garage - tuin. 1ste verdiep: 3 slaapkamers - badkamer - afzonderlijk toilet. Geïsoleerde zolder. Deze woning, lot 72, is rustig gelegen in een recente verkaveling, nabij de winkels van Middelkerke. EPC: woning in aanbouw. E-peil max 40. Alle plannen hier op de site te raadplegen.
Vraag uw bezoek aan
Vraag uw bezoek aan