Halfopen nieuwbouwwoning met 3 slaapkamers te Koekelare
Vraagprijs
Deze moderne nieuwbouwwoning te Koekelare bestaat uit:
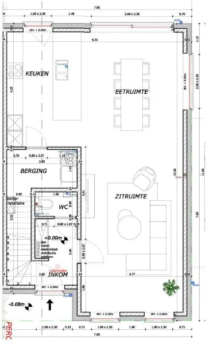
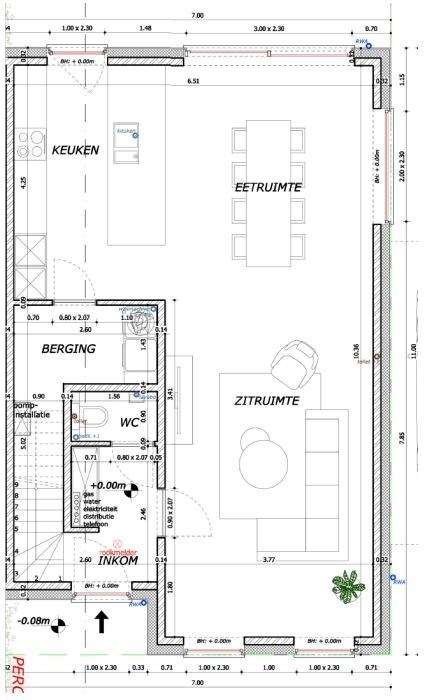
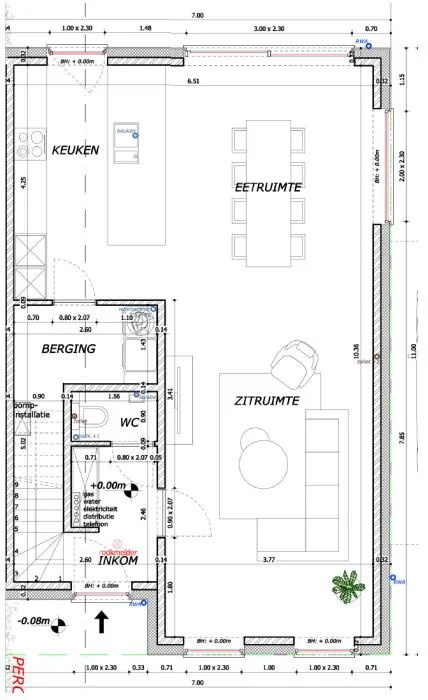
Gelijkvloers: inkomhal - gastentoilet - lichtrijke living met open ingerichte keuken - berging/wasplaats - carport.
Op 1ste verdieping: nachthal - afzonderlijk toilet - 3 slaapkamers - badkamer. - technische ruimte.
Troeven van deze woning:
- unieke ligging, nabij het centrum van Koekelare
- energiezuinig
- kwalitatief en duurzaam afgewerkt
EPC: Woning in aanbouw
Prijs 372000 € (exclusief registratierechten op de bouwgrond, exclusief BTW op de constructie- en aansluitingskosten).
Vraag uw bezoek aan
Gelijkvloers: inkomhal - gastentoilet - lichtrijke living met open ingerichte keuken - berging/wasplaats - carport.
Op 1ste verdieping: nachthal - afzonderlijk toilet - 3 slaapkamers - badkamer. - technische ruimte.
Troeven van deze woning:
- unieke ligging, nabij het centrum van Koekelare
- energiezuinig
- kwalitatief en duurzaam afgewerkt
EPC: Woning in aanbouw
Prijs 372000 € (exclusief registratierechten op de bouwgrond, exclusief BTW op de constructie- en aansluitingskosten).
Vraag uw bezoek aan