Moderne tijdloze woning te koop te Koekelare
Vraagprijs
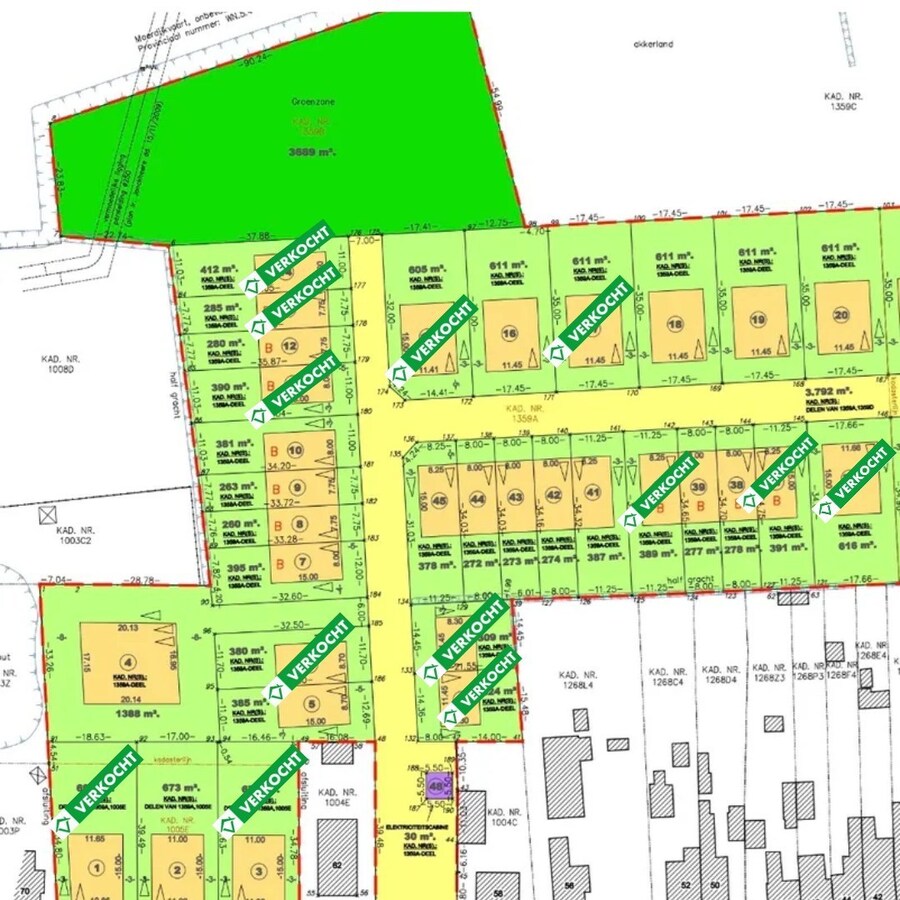
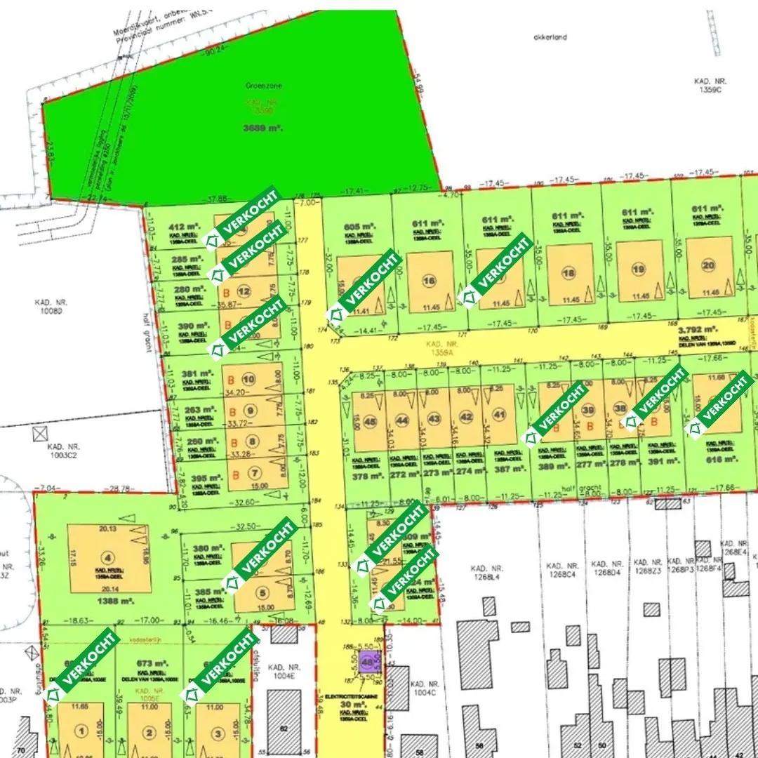
Langs de Hovaerestraat (lot 10) in Koekelare realiseren ze deze moderne, tijdloze woning. Je woont er op een boogscheut van het centrum, op wandelafstand van winkels, scholen en openbaar vervoer. Even uitwaaien in de natuur? Dat kan in het nabijgelegen Koekelarebos en Arboretum.
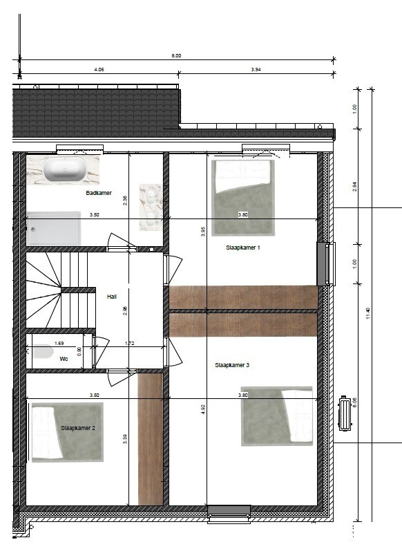
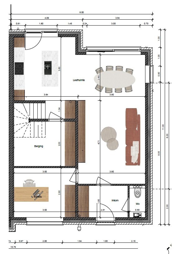
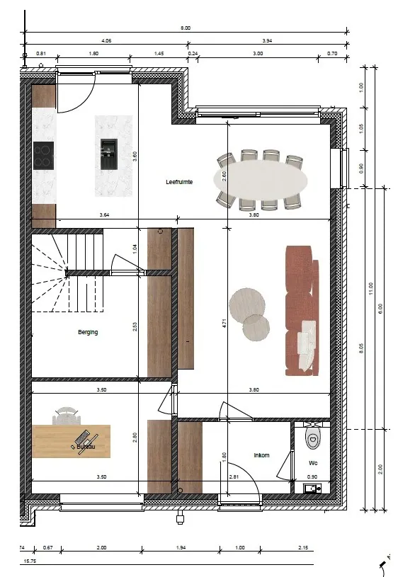
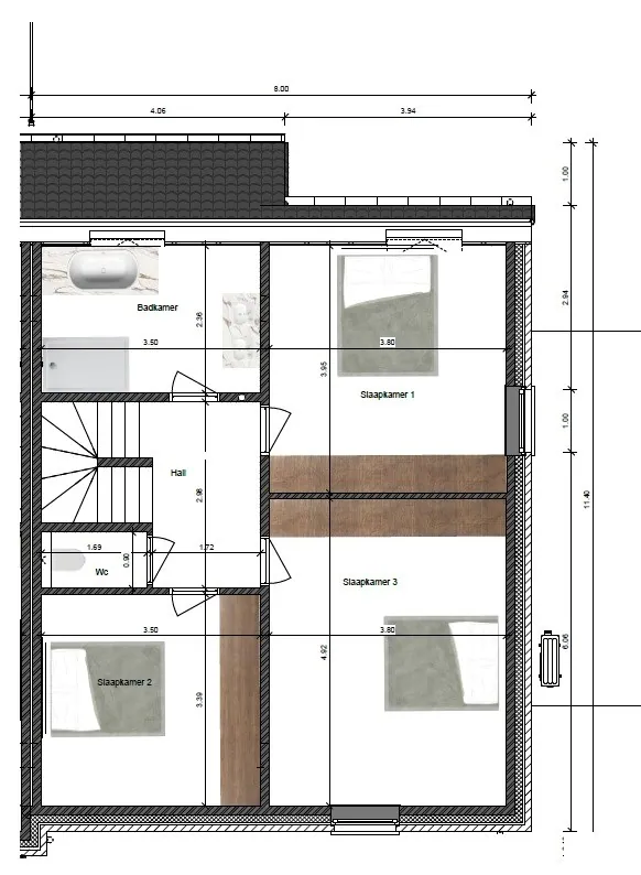
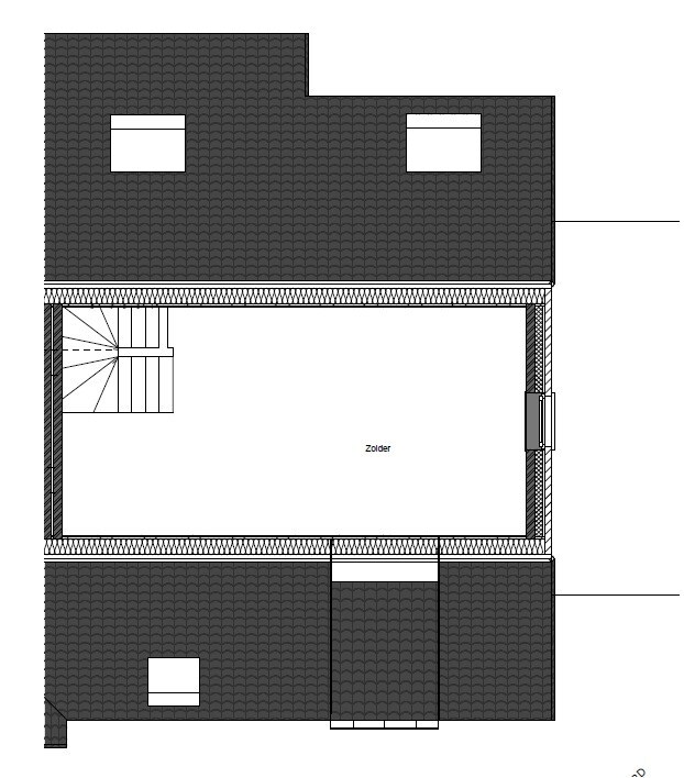
Deze verrassend ruime, energiezuinige nieuwbouwwoning omvat: een inkomhal met toilet, een ruime woon- en eetkamer met veel lichtinval, aansluitend een -naar eigen keuze ingerichte- open keuken - slaapkamer (bureau). Op de verdieping: 3 slaapkamers, een badkamer (met bad, inloopdouche en dubbele wastafel), een afzonderlijk toilet en een zolderverdieping op verdiep 2. Je kiest zelf de afwerkingsmaterialen voor keuken, badkamer, vloeren en binnendeuren. Zo kan je precies wonen zoals jij het zelf wilt. De woning heeft een ruime tuin om volop te genieten!
Het gebruik van een warmtepomp, in combinatie met vloerverwarming en zonnepanelen zorgt ervoor dat jouw toekomstige energiefactuur onder controle blijft (E10).
Een kijkje nemen? Contacteer ons voor meer ... informatie.
Deze prijs is exclusief de bijkomende kosten. Op de bouwgrond betaal je registratierechten (12% in Vlaanderen) en ereloon notaris. Op de constructie 21 % btw Lees meer Verberg
Vraag uw bezoek aan
Deze verrassend ruime, energiezuinige nieuwbouwwoning omvat: een inkomhal met toilet, een ruime woon- en eetkamer met veel lichtinval, aansluitend een -naar eigen keuze ingerichte- open keuken - slaapkamer (bureau). Op de verdieping: 3 slaapkamers, een badkamer (met bad, inloopdouche en dubbele wastafel), een afzonderlijk toilet en een zolderverdieping op verdiep 2. Je kiest zelf de afwerkingsmaterialen voor keuken, badkamer, vloeren en binnendeuren. Zo kan je precies wonen zoals jij het zelf wilt. De woning heeft een ruime tuin om volop te genieten!
Het gebruik van een warmtepomp, in combinatie met vloerverwarming en zonnepanelen zorgt ervoor dat jouw toekomstige energiefactuur onder controle blijft (E10).
Een kijkje nemen? Contacteer ons voor meer ... informatie.
Deze prijs is exclusief de bijkomende kosten. Op de bouwgrond betaal je registratierechten (12% in Vlaanderen) en ereloon notaris. Op de constructie 21 % btw Lees meer Verberg
Vraag uw bezoek aan