Prachtig afgewerkte nieuwbouwwoningen (BEN) te Koekelare (De Mokker)
Vraagprijs
Rond de Mokkerkapel worden drie moderne BEN-woningen gebouwd op een toplocatie, op wandelafstand van scholen, winkels en openbaar vervoer. De woningen worden ontwikkeld met focus op maximaal wooncomfort, energiezuinigheid en een kwalitatieve afwerking.
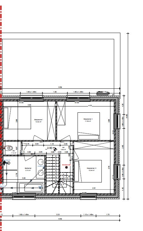
Lot 5 beschikt over een inpandige garage, een regenwaterput van 7.500 liter en een praktische zolder met extra mogelijkheden.
De woning kan wind- en waterdicht aangekocht worden — ideaal voor wie de afwerking volledig naar eigen smaak wil bepalen.
Wenst u meer informatie of een bezoek? Contacteer ons gerust.
Vraag uw bezoek aan
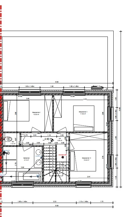
Lot 5 beschikt over een inpandige garage, een regenwaterput van 7.500 liter en een praktische zolder met extra mogelijkheden.
De woning kan wind- en waterdicht aangekocht worden — ideaal voor wie de afwerking volledig naar eigen smaak wil bepalen.
Wenst u meer informatie of een bezoek? Contacteer ons gerust.
Vraag uw bezoek aan