Moderne nieuwbouwwoning met uitzonderlijk wooncomfort te Koekelare (De Mokker)
Vraagprijs
In een rustige, jonge woonwijk aan het einde van een doodlopende straat vindt u deze moderne nieuwbouwwoning die uitblinkt in licht, ruimte en hoogwaardige afwerking. Een perfecte match voor wie houdt van een stijlvolle, energiezuinige en zorgeloze woonomgeving.
Het zuid-oost georiënteerde perceel van 517 m² laat u dagelijks genieten van aangename zonmomenten, zowel in de tuin als in de leefruimten. Binnen wordt u meteen verrast door de royale open ruimtes, grote ramen en een overvloed aan natuurlijk licht: een woning die meteen een warm en ruimtelijk gevoel biedt.
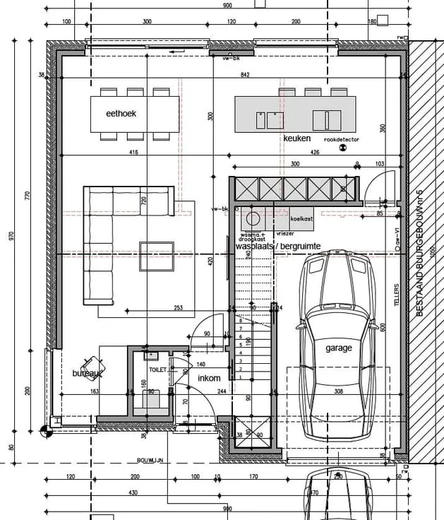
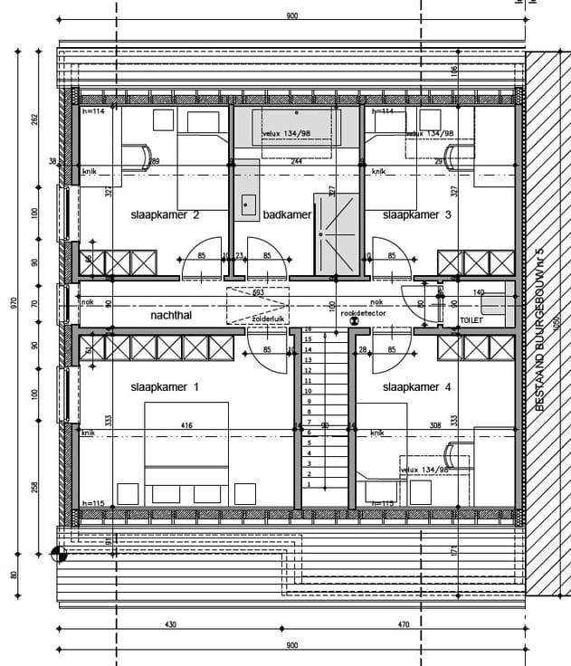
Met een bruto vloeroppervlakte van 156 m² beschikt de woning over een inpandige garage en vier volwaardige slaapkamers. Twee kamers zijn bovendien uitgerust met elektrisch bediende rolluiken. Extra bergruimte nodig? De praktische zolderverdieping van 30 m² biedt onmiddellijk bruikbare opslagmogelijkheden.
De kwalitatieve afwerking zet de toon in heel de woning. Denk aan:
- een stijlvolle eiken trap
- sanitair van topmerken zoals Villeroy & Boch, Grohe en ... Hansgrohe
- een keuken van Belgische kwaliteit met composiet werkblad, Siemens-toestellen en Bora-kookplaat
- smaakvolle laminaatafwerking in de slaapkamers
- Gelijkvloers: 91 m² bruto vloeroppervlakte
- Eerste verdieping: 65 m² bruto vloeroppervlakte
- Zolderverdieping: 29,80 m² netto bruikbare ruimte
Ook op energetisch vlak scoort deze woning bijzonder sterk. Met een E-peil van E14 (voorstudie), 12 zonnepanelen van 460 Wp, vloerverwarming in de leefruimten en een uitstekende luchtdichtheid bent u verzekerd van een toekomstgerichte én zuinige woonoplossing.
Het perceel heeft bovendien overstromingsscore A, maximale gemoedsrust gegarandeerd.
Alle dagelijkse faciliteiten bevinden zich op wandelafstand: school, bakker, slager, apotheek en openbaar vervoer. En het centrum van Koekelare bereikt u in amper 5 minuten.
Bent u op zoek naar een moderne woning waar kwaliteit, comfort en energiezuinigheid hand in hand gaan? Dan is dit een unieke kans.
Neem gerust contact met ons op voor meer informatie of om uw bezoek vast te leggen. Lees meer Verberg
Vraag uw bezoek aan
Het zuid-oost georiënteerde perceel van 517 m² laat u dagelijks genieten van aangename zonmomenten, zowel in de tuin als in de leefruimten. Binnen wordt u meteen verrast door de royale open ruimtes, grote ramen en een overvloed aan natuurlijk licht: een woning die meteen een warm en ruimtelijk gevoel biedt.
Met een bruto vloeroppervlakte van 156 m² beschikt de woning over een inpandige garage en vier volwaardige slaapkamers. Twee kamers zijn bovendien uitgerust met elektrisch bediende rolluiken. Extra bergruimte nodig? De praktische zolderverdieping van 30 m² biedt onmiddellijk bruikbare opslagmogelijkheden.
De kwalitatieve afwerking zet de toon in heel de woning. Denk aan:
- een stijlvolle eiken trap
- sanitair van topmerken zoals Villeroy & Boch, Grohe en ... Hansgrohe
- een keuken van Belgische kwaliteit met composiet werkblad, Siemens-toestellen en Bora-kookplaat
- smaakvolle laminaatafwerking in de slaapkamers
- Gelijkvloers: 91 m² bruto vloeroppervlakte
- Eerste verdieping: 65 m² bruto vloeroppervlakte
- Zolderverdieping: 29,80 m² netto bruikbare ruimte
Ook op energetisch vlak scoort deze woning bijzonder sterk. Met een E-peil van E14 (voorstudie), 12 zonnepanelen van 460 Wp, vloerverwarming in de leefruimten en een uitstekende luchtdichtheid bent u verzekerd van een toekomstgerichte én zuinige woonoplossing.
Het perceel heeft bovendien overstromingsscore A, maximale gemoedsrust gegarandeerd.
Alle dagelijkse faciliteiten bevinden zich op wandelafstand: school, bakker, slager, apotheek en openbaar vervoer. En het centrum van Koekelare bereikt u in amper 5 minuten.
Bent u op zoek naar een moderne woning waar kwaliteit, comfort en energiezuinigheid hand in hand gaan? Dan is dit een unieke kans.
Neem gerust contact met ons op voor meer informatie of om uw bezoek vast te leggen. Lees meer Verberg
Vraag uw bezoek aan