bouwgrond voor halfopen bebouwing centrum Koekelare
Vraagprijs
Dit stuk bouwgrond is gelegen in het centrum van Koekelare en heeft een totale opp. van 216 m².
De werken zijn gestart om er een halfopen bebouwing op te zetten, doch zijn op heden gestopt met verder te bouwen. Plannen aanwezig en renders hoe het eruit kan zien. EPC: woning in aanbouw.
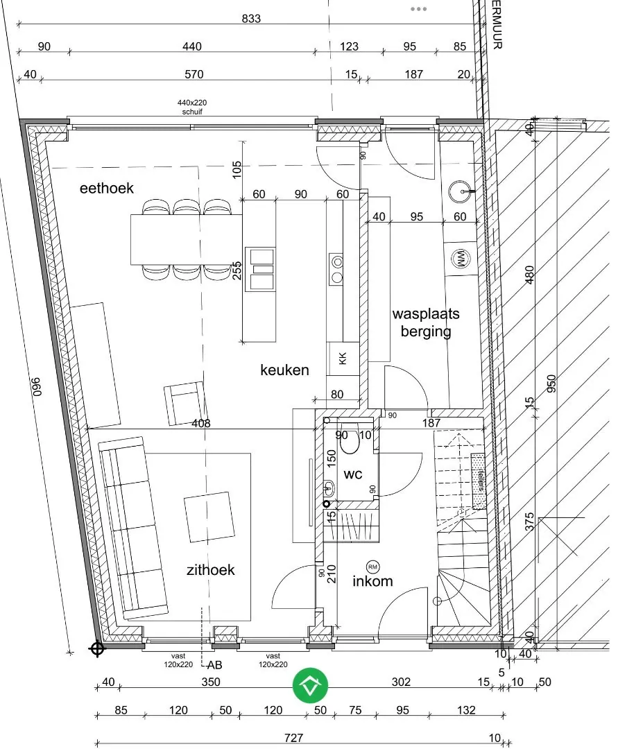
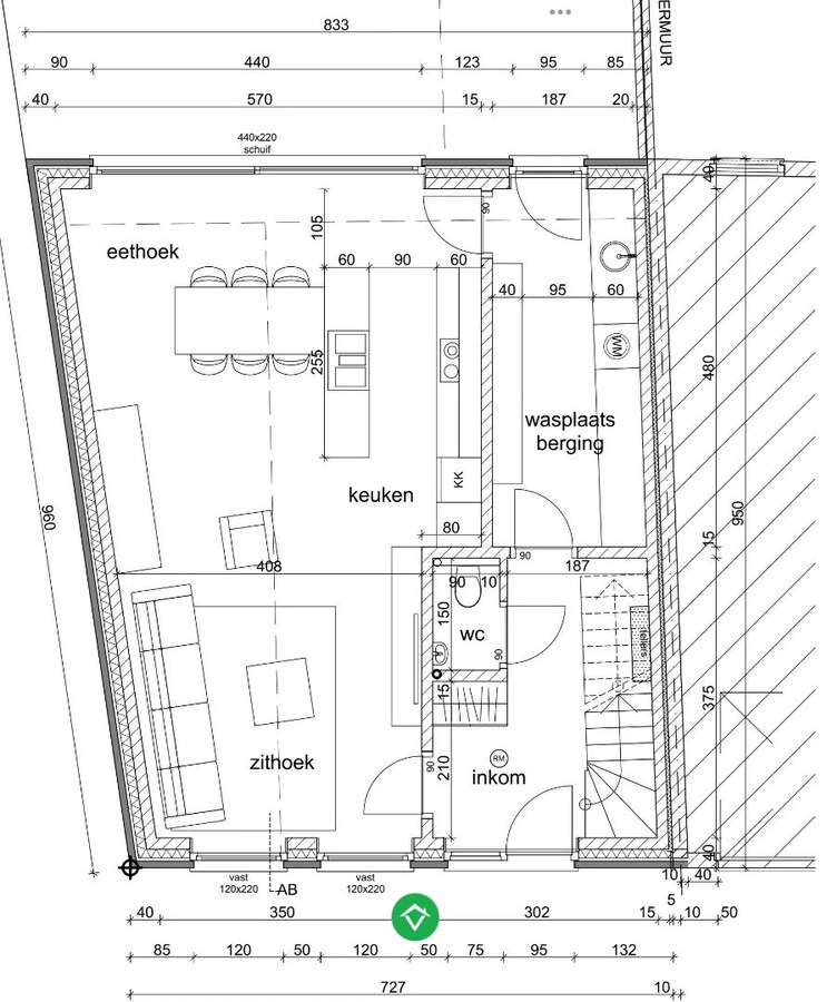
Gelijkvloers: min. 7,27m voorkant / 8,33 m achterkant,
bouwdiepte 9,50 m
Prijs huidige staat 132 000 €
Vraag uw bezoek aan
De werken zijn gestart om er een halfopen bebouwing op te zetten, doch zijn op heden gestopt met verder te bouwen. Plannen aanwezig en renders hoe het eruit kan zien. EPC: woning in aanbouw.
Gelijkvloers: min. 7,27m voorkant / 8,33 m achterkant,
bouwdiepte 9,50 m
Prijs huidige staat 132 000 €
Vraag uw bezoek aan