Nieuwbouw woning met 3 slaapkamers te Koekelare
Verkocht Koekelare Lekestraat 50
Nieuwbouw woning met 3 slaapkamers, dubbele garage, tuin en terras.
Deze nieuwbouw met 3 ruime volwaardige slaapkamers wordt gebouwd in een tijdloze stijl en is voorzien van zonnepanelen en vloerverwarming. Prijzen afgewerkt 275 000 € exclusief kosten en exclusief 21 % BTW.
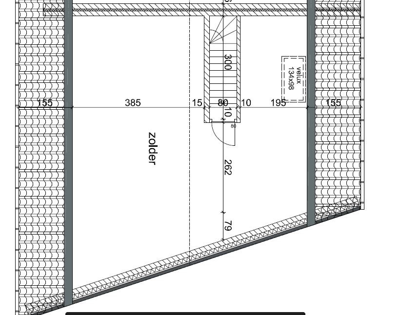
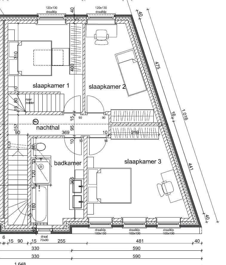
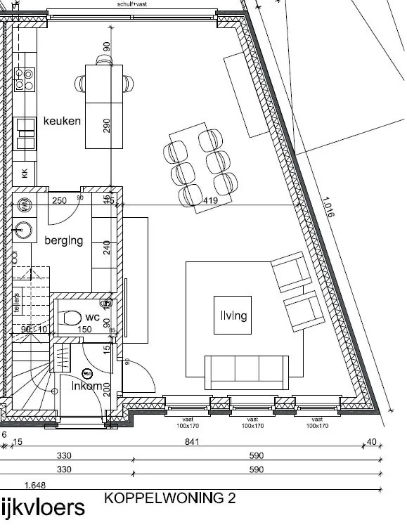
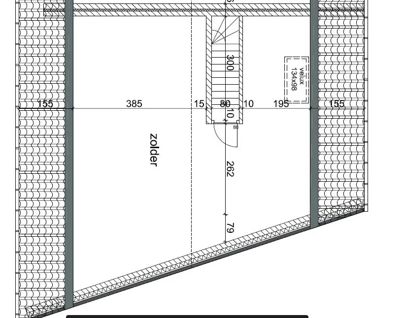
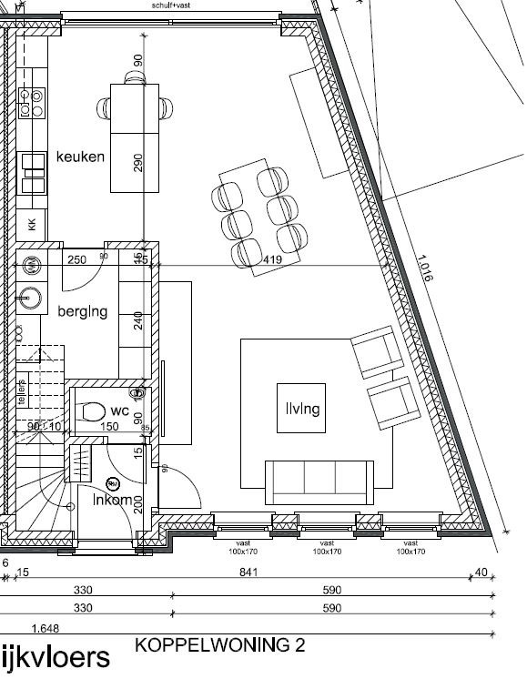
Indeling: Het gelijkvloers omvat de inkomhal met afzonderlijk toilet - living met open ingerichte keuken - berging/wasplaats - tuin - garage met plaats voor 2 wagens. Op verdiep 1: nachthal - toilet - badkamer met inloopdouche / dubbele lavabo en ligbad - 3 slaapkamers. Er is een vaste trap naar de tweede verdieping (zolder) waar u de mogelijkheid heeft om 2 extra slaapkamers in te richten. Hebt u verder vragen over deze pastoriewoning? Bel ons gerust op voor deze topper. EPC: woning in aanbouw. Alle info en plannen te verkrijgen op kantoor. Afgewerkt oktober 2020.
Vraag uw bezoek aan
Deze nieuwbouw met 3 ruime volwaardige slaapkamers wordt gebouwd in een tijdloze stijl en is voorzien van zonnepanelen en vloerverwarming. Prijzen afgewerkt 275 000 € exclusief kosten en exclusief 21 % BTW.
Indeling: Het gelijkvloers omvat de inkomhal met afzonderlijk toilet - living met open ingerichte keuken - berging/wasplaats - tuin - garage met plaats voor 2 wagens. Op verdiep 1: nachthal - toilet - badkamer met inloopdouche / dubbele lavabo en ligbad - 3 slaapkamers. Er is een vaste trap naar de tweede verdieping (zolder) waar u de mogelijkheid heeft om 2 extra slaapkamers in te richten. Hebt u verder vragen over deze pastoriewoning? Bel ons gerust op voor deze topper. EPC: woning in aanbouw. Alle info en plannen te verkrijgen op kantoor. Afgewerkt oktober 2020.
Vraag uw bezoek aan