Vrijstaande nieuwbouwwoning met 4 slaapkamers en tuin te Ichtegem
Verkocht Ichtegem Oude Oostendeweg 17 LOT
Alleenstaande woning in zeer rustig gelegen verkaveling, met zuid gerichte tuin, nabij het centrum van Ichtegem.
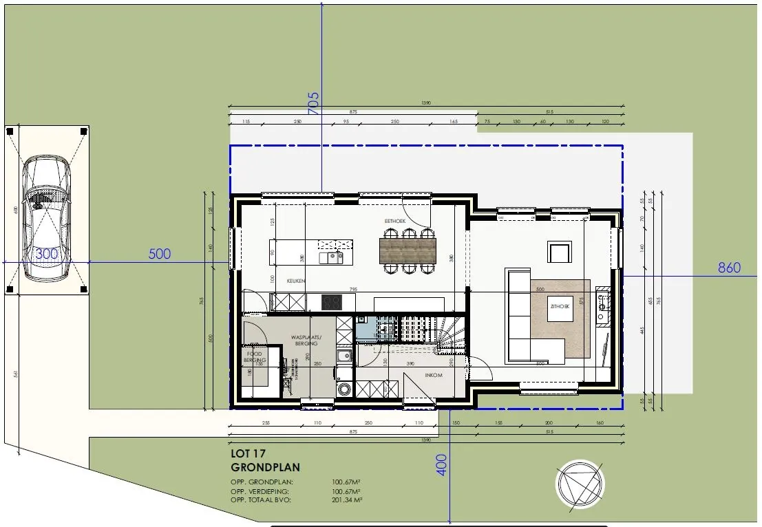
De belangrijkste specificaties van de woning & bouwperceel is (lot 17):
- Stijl woning : vrij te kiezen, bijgevoegde 3D& plannen zijn een uitgewerkt voorbeeld van wat er mogelijk is);
- Type woning : open;
- Bebouwde oppervlakte (gelijkvloers & verdieping samen) : +- 180m²
- Oppervlakte perceel : 538m²
Kenmerken woning :
- vrije keuze
- Stijlvolle & ruime woning;
- Kwaliteitsvolle, duurzame & klassevolle materialen;
- 3 tot 4 slaapkamers;
- Mooie moderne keuken
- E-peil 35 & S-peil 31;
- Hernieuwbare energie onder de vorm van fotovoltaïsche zonnepanelen (panelen van 350Wp/stuk);
- Ruime zolder
Locatie:
- Nieuwe verkaveling gelegen tussen de Oude Oostendeweg & Molenstraat te Ichtegem, op rustige locatie
Beschikbaar : najaar 2021
Voor meer informatie omtrent dit prachtig nieuwbouwproject, maak een afspraak via 0492/975.352 of info@vastgoedsinnaeve.be
Nota : Alle vermelde prijzen zijn ... steeds exclusief kosten. (Kosten = 21% BTW op de constructiewaarde, 21% BTW op de infrastructuurwaarde, 10% registratie op de grondwaarde, opmetingskosten landmeter, akte- & notariskosten + aansluitingskosten nutsvoorzieningen).
Lees meer Verberg
Vraag uw bezoek aan
De belangrijkste specificaties van de woning & bouwperceel is (lot 17):
- Stijl woning : vrij te kiezen, bijgevoegde 3D& plannen zijn een uitgewerkt voorbeeld van wat er mogelijk is);
- Type woning : open;
- Bebouwde oppervlakte (gelijkvloers & verdieping samen) : +- 180m²
- Oppervlakte perceel : 538m²
Kenmerken woning :
- vrije keuze
- Stijlvolle & ruime woning;
- Kwaliteitsvolle, duurzame & klassevolle materialen;
- 3 tot 4 slaapkamers;
- Mooie moderne keuken
- E-peil 35 & S-peil 31;
- Hernieuwbare energie onder de vorm van fotovoltaïsche zonnepanelen (panelen van 350Wp/stuk);
- Ruime zolder
Locatie:
- Nieuwe verkaveling gelegen tussen de Oude Oostendeweg & Molenstraat te Ichtegem, op rustige locatie
Beschikbaar : najaar 2021
Voor meer informatie omtrent dit prachtig nieuwbouwproject, maak een afspraak via 0492/975.352 of info@vastgoedsinnaeve.be
Nota : Alle vermelde prijzen zijn ... steeds exclusief kosten. (Kosten = 21% BTW op de constructiewaarde, 21% BTW op de infrastructuurwaarde, 10% registratie op de grondwaarde, opmetingskosten landmeter, akte- & notariskosten + aansluitingskosten nutsvoorzieningen).
Lees meer Verberg
Vraag uw bezoek aan