Half-open nieuwbouwwoning met 3 slaapkamers en tuin te Ichtegem
Verkocht Ichtegem Oude Oostendeweg 6 LOT
Koppelbouwwoning in zeer rustig gelegen verkaveling met landelijk vergezicht, nabij het centrum van Ichtegem
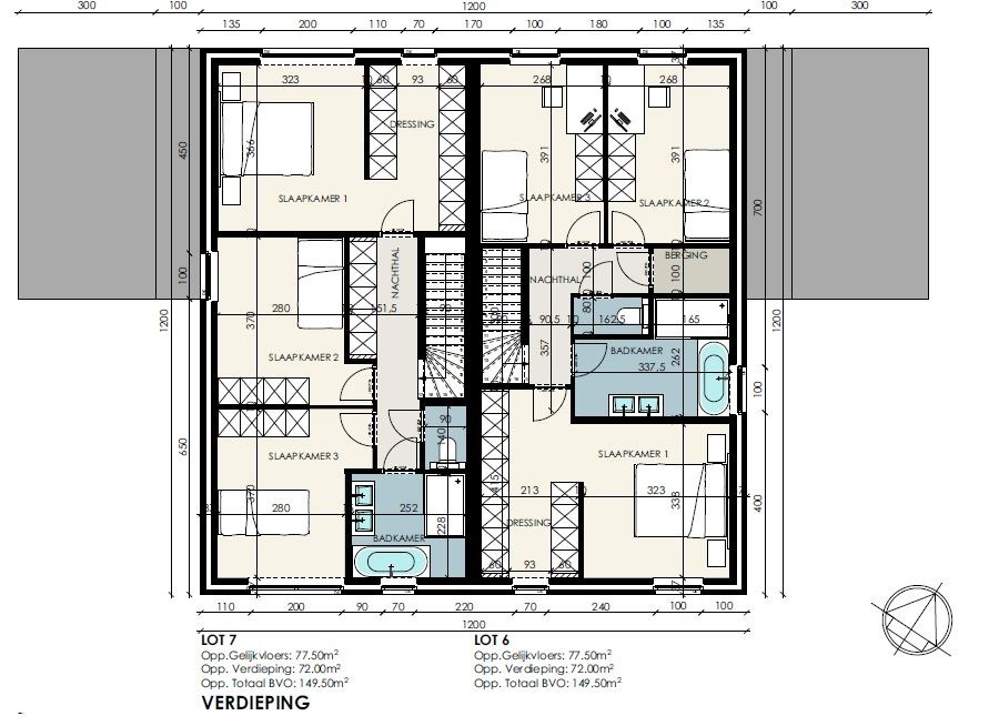
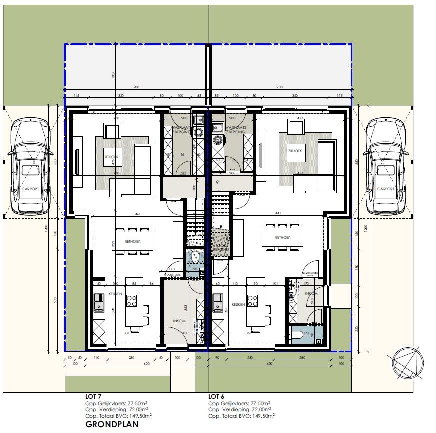
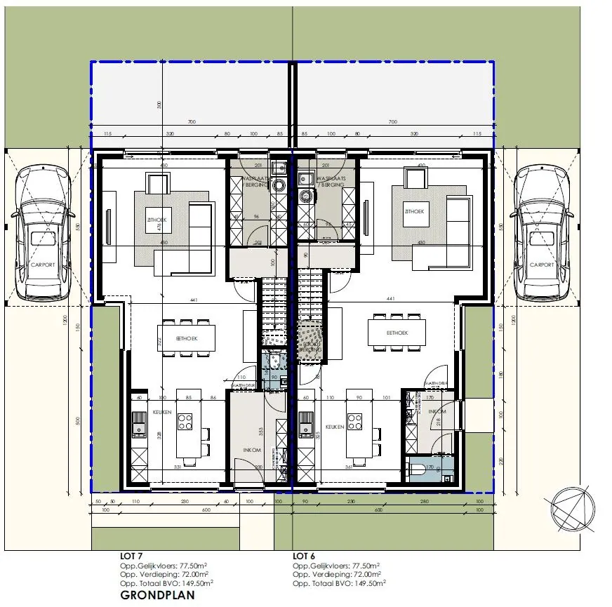
De belangrijkste specificaties van de woning & bouwperceel is (lot 6):
- Stijl woning : modern;
- Type woning : halfopen;
- Bebouwde oppervlakte (gelijkvloers & verdieping samen) : 149,5m²
- Oppervlakte perceel : 267m²
Kenmerken woning :
- 2 bouwlagen met plat dak;
- Stijlvolle & ruime woning;
- Kwaliteitsvolle, duurzame & klassevolle materialen;
- 3 slaapkamers;
- Mooie moderne keuken
- E-peil 35 & S-peil 31;
- Hernieuwbare energie onder de vorm van fotovoltaïsche zonnepanelen (panelen van 350Wp/stuk);
Locatie:
- Nieuwe verkaveling gelegen tussen de Oude Oostendeweg & Molenstraat te Ichtegem, op rustige locatie
Beschikbaar : najaar 2021
Voor meer informatie omtrent dit prachtig nieuwbouwproject, maak een afspraak via 0492/975.352 of info@vastgoedsinnaeve.be
Nota : Alle vermelde prijzen zijn steeds exclusief kosten. (Kosten = BTW op de constructiewaarde, BTW op de infrastructuurwaarde, 10% ... registratie op de grondwaarde, opmetingskosten landmeter, akte- & notariskosten + aansluitingskosten nutsvoorzieningen).
Heden is er een mogelijkheid om aan verlaagd tarief van 6% BTW (op de constructiewaarde ) aan te kopen! Voorwaarden in te kijken op ons kantoor te Koekelare of Roeselare.
Lees meer Verberg
Vraag uw bezoek aan
De belangrijkste specificaties van de woning & bouwperceel is (lot 6):
- Stijl woning : modern;
- Type woning : halfopen;
- Bebouwde oppervlakte (gelijkvloers & verdieping samen) : 149,5m²
- Oppervlakte perceel : 267m²
Kenmerken woning :
- 2 bouwlagen met plat dak;
- Stijlvolle & ruime woning;
- Kwaliteitsvolle, duurzame & klassevolle materialen;
- 3 slaapkamers;
- Mooie moderne keuken
- E-peil 35 & S-peil 31;
- Hernieuwbare energie onder de vorm van fotovoltaïsche zonnepanelen (panelen van 350Wp/stuk);
Locatie:
- Nieuwe verkaveling gelegen tussen de Oude Oostendeweg & Molenstraat te Ichtegem, op rustige locatie
Beschikbaar : najaar 2021
Voor meer informatie omtrent dit prachtig nieuwbouwproject, maak een afspraak via 0492/975.352 of info@vastgoedsinnaeve.be
Nota : Alle vermelde prijzen zijn steeds exclusief kosten. (Kosten = BTW op de constructiewaarde, BTW op de infrastructuurwaarde, 10% ... registratie op de grondwaarde, opmetingskosten landmeter, akte- & notariskosten + aansluitingskosten nutsvoorzieningen).
Heden is er een mogelijkheid om aan verlaagd tarief van 6% BTW (op de constructiewaarde ) aan te kopen! Voorwaarden in te kijken op ons kantoor te Koekelare of Roeselare.
Lees meer Verberg
Vraag uw bezoek aan