Nieuw woonproject in Koekelare - ruime bouwkavels op toplocatie
Vraagprijs
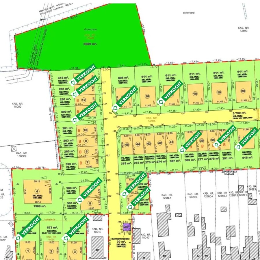
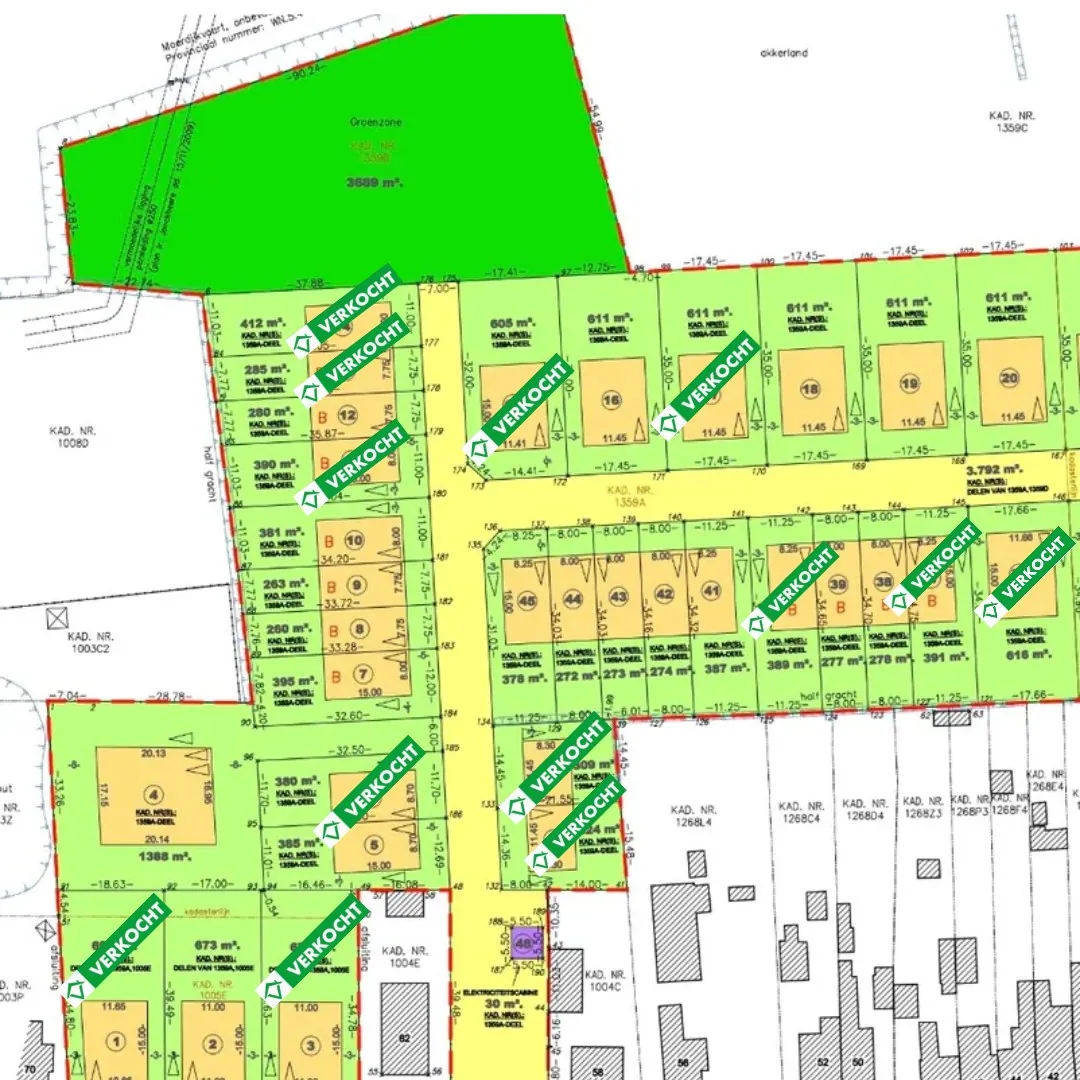
Langs de Hovaerestraat (rechts naast huisnummer 70) in Koekelare realiseren ze deze nieuwe verkaveling waar lot 19 te koop is. Je woont er op een boogscheut van het centrum, op wandelafstand van winkels (supermarkt op 650m, bakkerij op 500m), scholen (basisschool en middelbare school op 1 km) en openbaar vervoer (bushalte op 700m). Even uitwaaien in de natuur? Dat kan in het nabijgelegen Koekelarebos en Arboretum.
Dit villaperceel voor open bebouwing heeft een oppervlakte van 611m² (lot 19) groot. De grootte van de percelen en de ruime stedenbouwkundige voorschriften (één of twee bouwlagen, vlak of hellend dak) bieden tal van mogelijkheden. Hier bouwen ze jouw nieuwe, energiezuinige woning volledig op maat, tegen een vaste prijs.
Contacteer ons voor meer info of een afspraak. Of vraag jouw gratis inspiratieboek: 250 pagina's boordevol woonideeën.
Vraag uw bezoek aan
Dit villaperceel voor open bebouwing heeft een oppervlakte van 611m² (lot 19) groot. De grootte van de percelen en de ruime stedenbouwkundige voorschriften (één of twee bouwlagen, vlak of hellend dak) bieden tal van mogelijkheden. Hier bouwen ze jouw nieuwe, energiezuinige woning volledig op maat, tegen een vaste prijs.
Contacteer ons voor meer info of een afspraak. Of vraag jouw gratis inspiratieboek: 250 pagina's boordevol woonideeën.
Vraag uw bezoek aan