Nieuw woonproject in Koekelare – Ruime bouwkavels op toplocatie
Vraagprijs
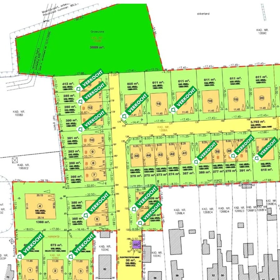
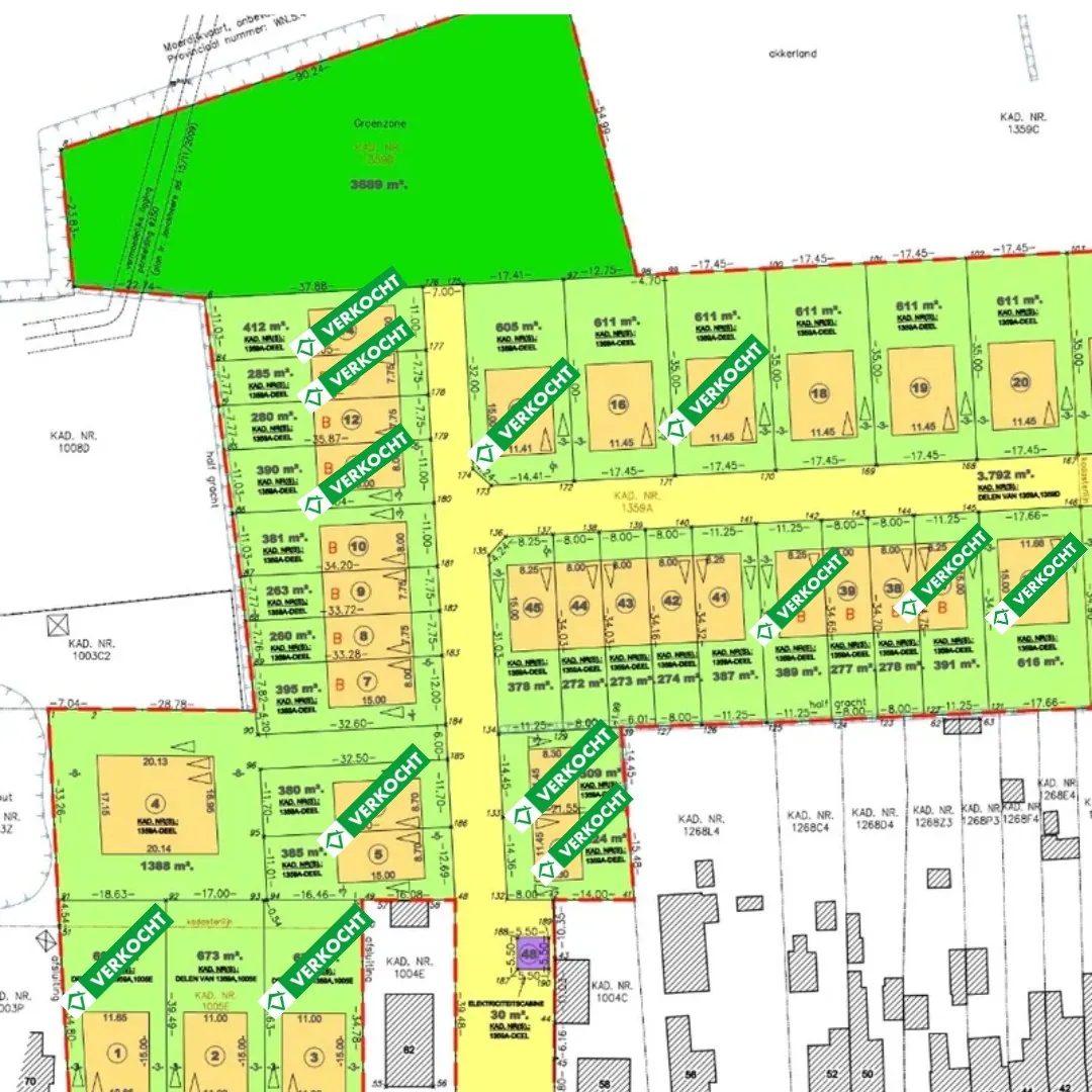
Langs de Hovaerestraat, naast huisnummer 70, ontstaat een nieuwe, aantrekkelijke verkaveling (lot5). Hier woon je op een toplocatie, dicht bij het centrum en met alle voorzieningen op wandelafstand. Lokale winkels, supermarkten, scholen en openbaar vervoer zijn vlot bereikbaar, waardoor comfort en gemak centraal staan.
De bouwkavels variëren in grootte en bieden flexibele bouwmogelijkheden, met keuze tussen één of twee bouwlagen en een plat of hellend dak.
Hier bouwen we samen jouw energiezuinige droomwoning, volledig op maat en tegen een vaste prijs.
Interesse? Contacteer ons voor meer informatie of een afspraak ter plaatse. Of vraag jouw gratis inspiratieboek: 250 pagina's boordevol woonideeën.
Vraag uw bezoek aan
De bouwkavels variëren in grootte en bieden flexibele bouwmogelijkheden, met keuze tussen één of twee bouwlagen en een plat of hellend dak.
Hier bouwen we samen jouw energiezuinige droomwoning, volledig op maat en tegen een vaste prijs.
Interesse? Contacteer ons voor meer informatie of een afspraak ter plaatse. Of vraag jouw gratis inspiratieboek: 250 pagina's boordevol woonideeën.
Vraag uw bezoek aan