Nieuwbouwappartement met 2 slaapkamers en 1 terras in centrum Koekelare
Vraagprijs
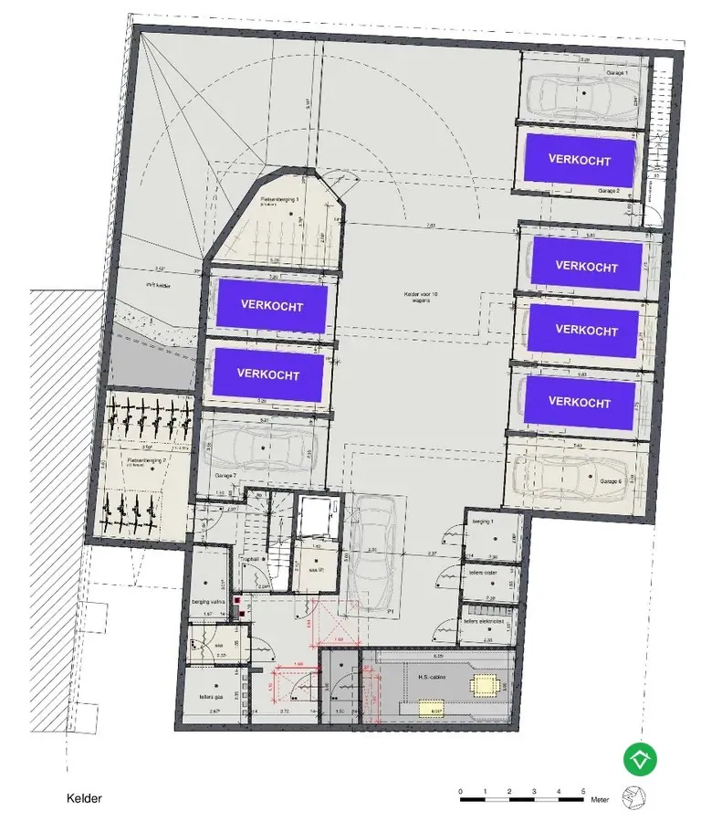
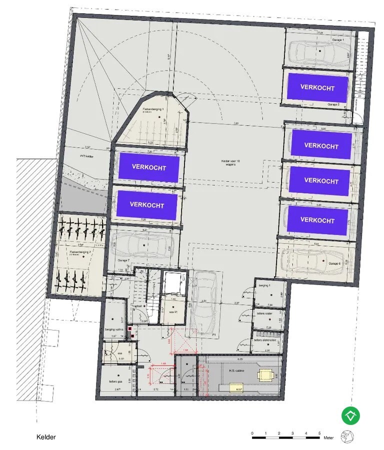
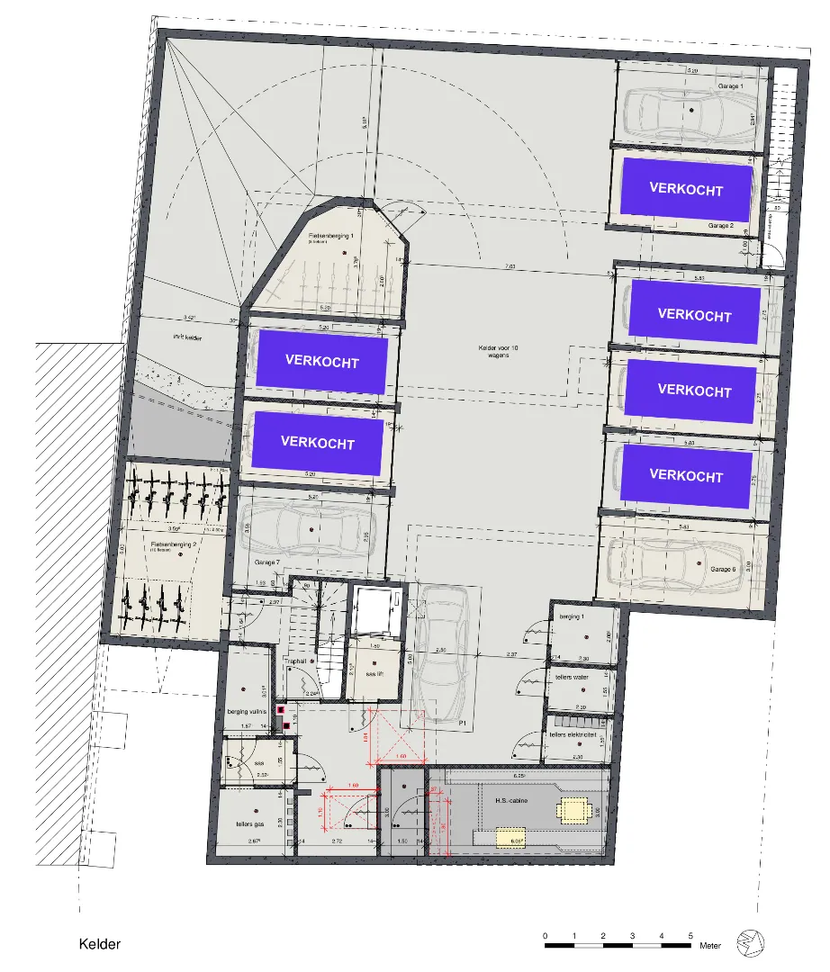
Dit mooie nieuwbouwproject bestaat uit 9 appartementen, verdeeld over drie verdiepen. Op de ondergrondse verdieping wordt er per appartement één individuele garagebox voorzien. Twee gemeenschappelijke fietsenbergingen, vuilnisberging en staanplaatsen voor bezoekers worden ook ter beschikking gesteld van de bewoners.
Verder worden alle appartementen volledig instapklaar afgewerkt aan de hand van kwalitatieve materialen.
Oplevering voorzien september 2025. EPB: appartement in aanbouw.
Dit prachtig appartement bestaat uit: leefruimte - keuken - 1 terras (35 m²) - berging - toilet - 2 slaapkamers - badkamer - technische ruimte - zolder van 39 m² .
De prijs is exclusief BTW, registratierechten en notariskosten.
Contacteer ons vrijblijvend voor meer informatie over onze unieke betalingsmodaliteiten, het lastenboek en de prijzen.
Vraag uw bezoek aan
Verder worden alle appartementen volledig instapklaar afgewerkt aan de hand van kwalitatieve materialen.
Oplevering voorzien september 2025. EPB: appartement in aanbouw.
Dit prachtig appartement bestaat uit: leefruimte - keuken - 1 terras (35 m²) - berging - toilet - 2 slaapkamers - badkamer - technische ruimte - zolder van 39 m² .
De prijs is exclusief BTW, registratierechten en notariskosten.
Contacteer ons vrijblijvend voor meer informatie over onze unieke betalingsmodaliteiten, het lastenboek en de prijzen.
Vraag uw bezoek aan