Uniek nieuwbouw appartement met 2 slaapkamers en veel zonlicht te Eernegem
Verkocht Eernegem Stationsstraat 25 B 2.3
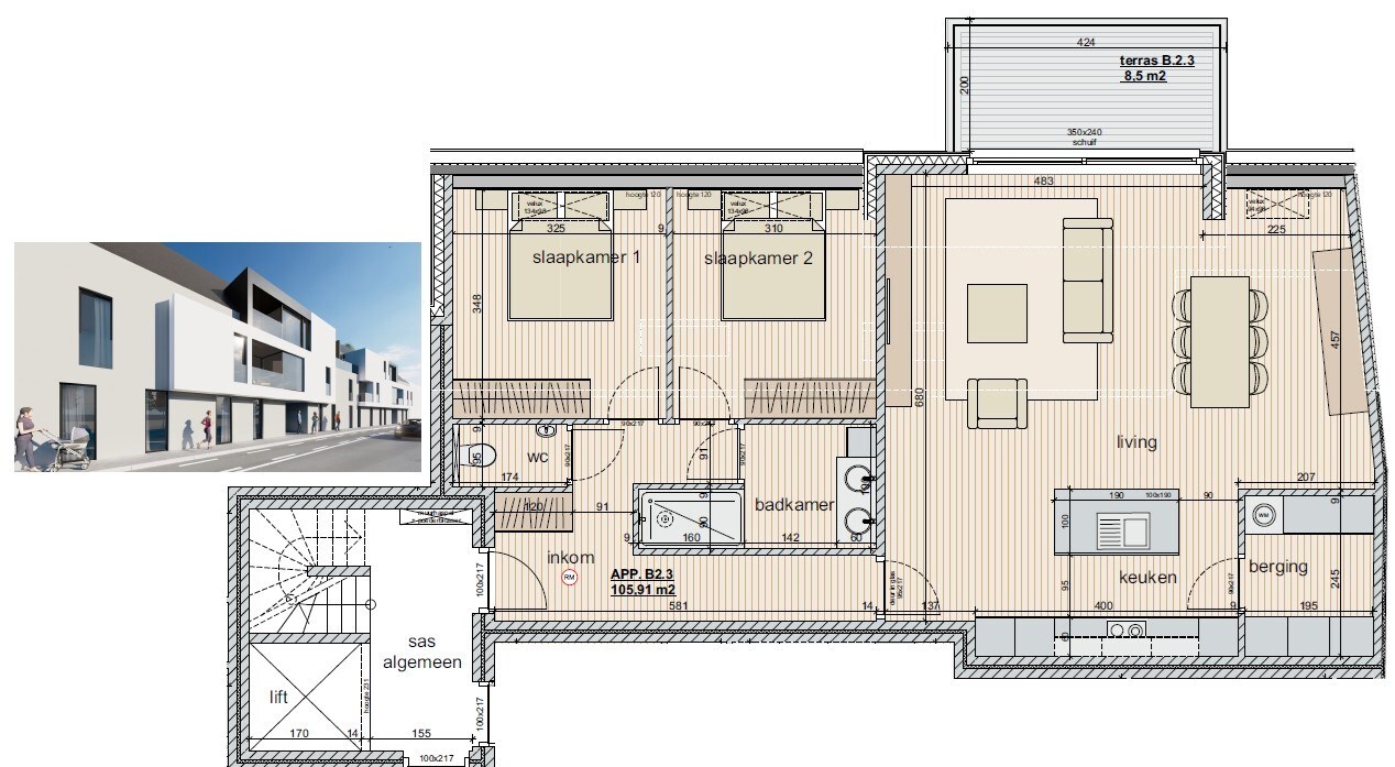
Dit mooi nieuwbouwappartement is gelegen op de 2de verdieping van de Residentie La Poste FASE 2.
Deze residentie La Poste is een nieuw project, gelegen op een unieke ligging in het centrum van Eernegem, in de onmiddellijke omgeving van alle winkels, bakkers, scholen, gemeentehuis, bibliotheek…
Deze residentie bestaat uit 11 moderne en comfortabele appartementen . Elk appartement geniet van natuurlijk lichtinval dankzij een ideale oriëntatie, grote glaspartijen en ruime terrassen.
Het appartement 2.3 op de tweede verdieping bestaat uit: lift - inkomhal - toilet - living - terras van 8,5 m² - keuken - berging - 2 slaapkamers - badkamer.
Achteraan de residentie worden bovengrondse garages en staanplaatsen alsook een ruime gemeenschappelijke fietsenberging voorzien.
Kortom een lichtrijk nieuwbouwappartement waar u intens kunt genieten van een unieke woonbeleving.
EPC: appartement in aanbouw UC: Appartement in aanbouw
Voor meer informatie omtrent dit prachtig nieuwbouwproject maak een afspraak via 0476772446 of ... info@vastgoedsinnaeve.be
Nota : Alle vermelde prijzen zijn steeds exclusief kosten. (Kosten = BTW op de constructiewaarde 6% BTW mogelijk!, registratierechten op de grondwaarde).
Heden is er een mogelijkheid om aan verlaagd tarief van 6% BTW (op de constructiewaarde ) aan te kopen! Voorwaarden in te kijken op ons kantoor te Koekelare. Lees meer Verberg
Vraag uw bezoek aan
Deze residentie La Poste is een nieuw project, gelegen op een unieke ligging in het centrum van Eernegem, in de onmiddellijke omgeving van alle winkels, bakkers, scholen, gemeentehuis, bibliotheek…
Deze residentie bestaat uit 11 moderne en comfortabele appartementen . Elk appartement geniet van natuurlijk lichtinval dankzij een ideale oriëntatie, grote glaspartijen en ruime terrassen.
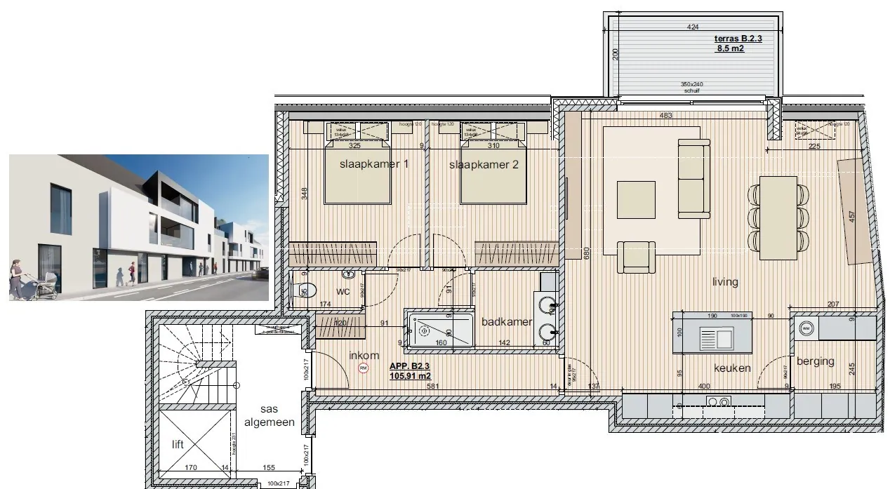
Het appartement 2.3 op de tweede verdieping bestaat uit: lift - inkomhal - toilet - living - terras van 8,5 m² - keuken - berging - 2 slaapkamers - badkamer.
Achteraan de residentie worden bovengrondse garages en staanplaatsen alsook een ruime gemeenschappelijke fietsenberging voorzien.
Kortom een lichtrijk nieuwbouwappartement waar u intens kunt genieten van een unieke woonbeleving.
EPC: appartement in aanbouw UC: Appartement in aanbouw
Voor meer informatie omtrent dit prachtig nieuwbouwproject maak een afspraak via 0476772446 of ... info@vastgoedsinnaeve.be
Nota : Alle vermelde prijzen zijn steeds exclusief kosten. (Kosten = BTW op de constructiewaarde 6% BTW mogelijk!, registratierechten op de grondwaarde).
Heden is er een mogelijkheid om aan verlaagd tarief van 6% BTW (op de constructiewaarde ) aan te kopen! Voorwaarden in te kijken op ons kantoor te Koekelare. Lees meer Verberg
Vraag uw bezoek aan