Centraal gelegen nieuwbouwwoning met 3 slaapkamers, tuin en overdekte autostaanplaats
Huurprijs
Deze woning is gelegen op een uiterst centrale ligging in het centrum van Roeselare, kortbij de Spil, de winkelstraat, de ring en nog veel meer!
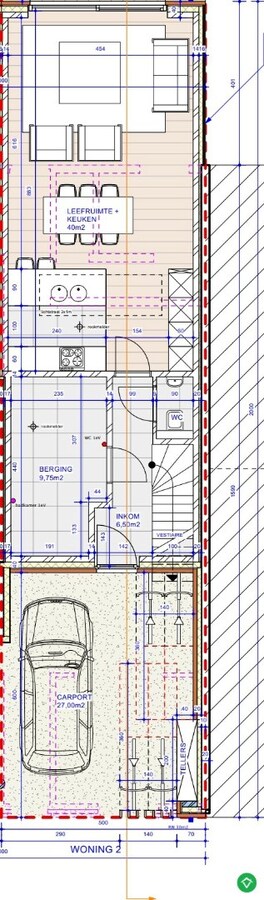
De indeling is als volgt: Overdekte parkeerplaats met fietsparking - inkomhal met berging - technische ruimte/wasplaats - apart toilet - ruime, lichtrijke living met uitgeruste keuken (met eiland: voorbeeld van de keuken toegevoegd) - Zeer zonnige tuin met terras.
Op het eerste verdiep: nachthal - ruime slaapkamer en badkamer (badkamermeubel - toilet en douche).
Op het tweede verdiep: nachthal - 2 volwaardige slaapkamers. Uit de eerste slaapkamer is er toegang tot de geïsoleerde zolder.
Troeven:
- Zonnepanelen en vloerverwarming aanwezig: uiterst energiezuinig
- Centraal gelegen in een gloednieuwe woning.
-Zuidgerichte tuin!
De woning wordt opgeleverd en is vrij vanaf 1/06/2026.
EPB: woning in aanbouw.
Bij interesse, gelieve enkel en alleen te reageren via het contactformulier. Wij contacteren u terug van zodra een bezoek mogelijk is.
Vraag uw bezoek aan
De indeling is als volgt: Overdekte parkeerplaats met fietsparking - inkomhal met berging - technische ruimte/wasplaats - apart toilet - ruime, lichtrijke living met uitgeruste keuken (met eiland: voorbeeld van de keuken toegevoegd) - Zeer zonnige tuin met terras.
Op het eerste verdiep: nachthal - ruime slaapkamer en badkamer (badkamermeubel - toilet en douche).
Op het tweede verdiep: nachthal - 2 volwaardige slaapkamers. Uit de eerste slaapkamer is er toegang tot de geïsoleerde zolder.
Troeven:
- Zonnepanelen en vloerverwarming aanwezig: uiterst energiezuinig
- Centraal gelegen in een gloednieuwe woning.
-Zuidgerichte tuin!
De woning wordt opgeleverd en is vrij vanaf 1/06/2026.
EPB: woning in aanbouw.
Bij interesse, gelieve enkel en alleen te reageren via het contactformulier. Wij contacteren u terug van zodra een bezoek mogelijk is.
Vraag uw bezoek aan